浙江省中医院湖滨院区厨房改造工程项目市场调研公告


字号:
小
中
大
根据《中华人民共和国政府采购法》等有关规定,我院拟对浙江省中医院湖滨院区厨房进行改造,现将市场调研事宜公告如下,欢迎符合要求的公司报名参加。 
一、 调研内容
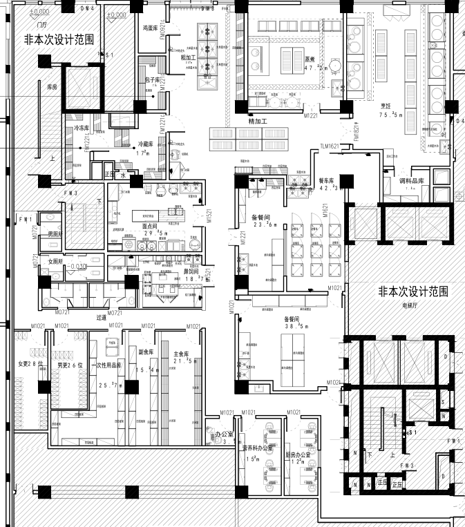
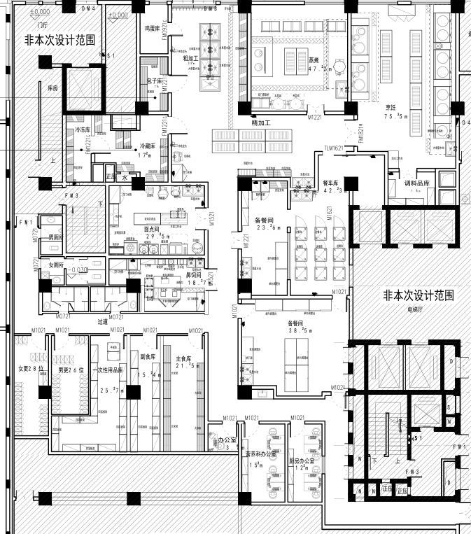
1. 工程范围:浙江省中医院湖滨院区厨房位于杭州市上城区,本次改造面积约720 平方米,具体以现场勘察为准。
2. 工程基本内容(预算金额235万元,基本平面布局如下):


3. 施工图及工程量清单(见附件)
二、报名及相关注意事项
1、报名截止日期:2024年10月17日10:00
2、调研日期与时间:时间待定(院方提前二天告知)
3、调研地点:杭州市邮电路23号长城资产大楼员工餐厅二楼。
4、现场汇报方式:PPT汇报。
5、报名方式:《报名登记表》(自行编辑)送至邮箱:597598768@qq.com
6、咨询电话:祝老师,18258159866。
三、资格要求:
意向单位应符合《中华人民共和国政府采购法》第22条规定条件:未被"信用中国"( www . creditchina .gov.cn)、中国政府采购网( www . ccgp . gov . cn )列入失信被执行人、重大税收违法案件当事人名单、政府采购严重违法失信行为记录名单。
四、提供材料:
1、调研材料一份,加盖公章。
2、《营业执照》复印件,加盖公章。
3、意向单位代表应提供有效身份证件。
附件下载链接:
https://pan.baidu.com/s/1mPmN6Np_moVE7U3XUrxSqA
提取码:ix3o
浙江省中医院
2024年10月14日
2024年10月14日