浙江省中医院湖滨院区浣纱路161号文保楼改造工程项目市场调研公告(第二次)


字号:
小
中
大
根据《中华人民共和国政府采购法》等有关规定,我院拟对湖滨院区浣纱路161号文保楼进行改造,现将市场调研事宜公告如下,欢迎符合要求的公司报名参加。
一、 调研内容
1.工程范围:浙江省中医院湖滨院区浣纱路161号文保楼改造工程位于杭州市上城区,本次改造面积约500 平方米,具体以现场勘察为准。
2.计划工期:90天
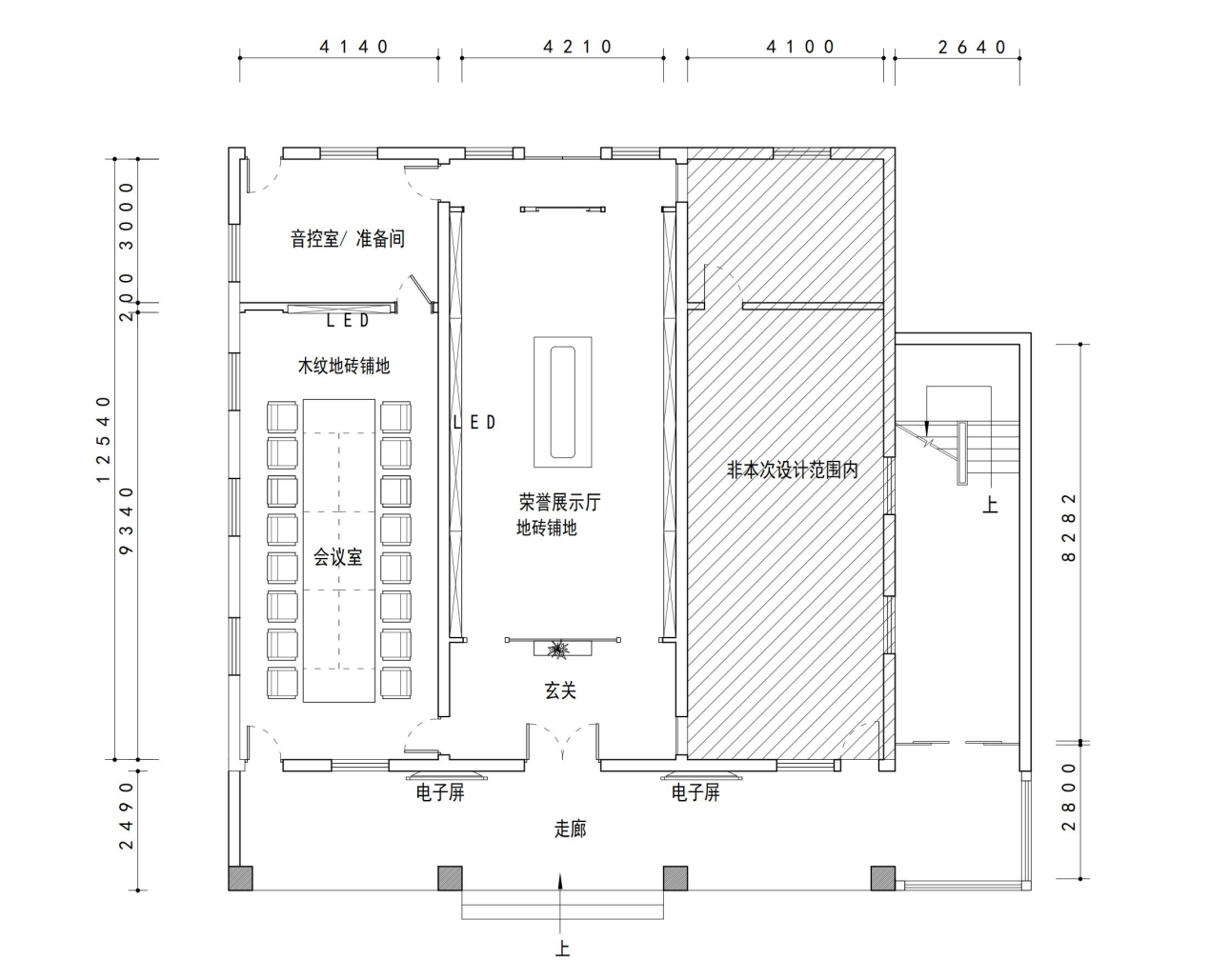
3.工程基本内容(预算金额175万元,基本平面布局如下):






基本布局图
4.施工图及工程量清单参考版(见附件)
二、报名及相关注意事项
1、报名截止日期:2024年8月9日10:00
2、调研日期与时间:我院工作人员将提前3个工作日进行通知。
3、调研地点:以我院通知为准。
4、现场汇报方式:PPT汇报。
5、报名方式:《报名登记表》(自行编辑)送至邮箱:545087995@qq.com
6、咨询电话:项老师,0571-87070885。
三、资格要求:
1.文物保护工程施工资质 二级;
2. 建筑装饰装修工程专业承包资质 二级;
3.意向单位应符合《中华人民共和国政府采购法》第22条规定条件:未被"信用中国"( www . creditchina .gov.cn)、中国政府采购网( www . ccgp . gov . cn )列入失信被执行人、重大税收违法案件当事人名单、政府采购严重违法失信行为记录名单。
四、提供材料:
1、调研材料一份,加盖公章。
2、《营业执照》复印件,加盖公章。
3、意向单位代表应提供有效身份证件。
附件链接: https://pan.baidu.com/s/1cKeHviJoEw3-KlcqB47ghw?pwd=widy 提取码: widy
浙江省中医院
2024年8月5日